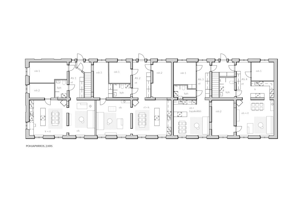
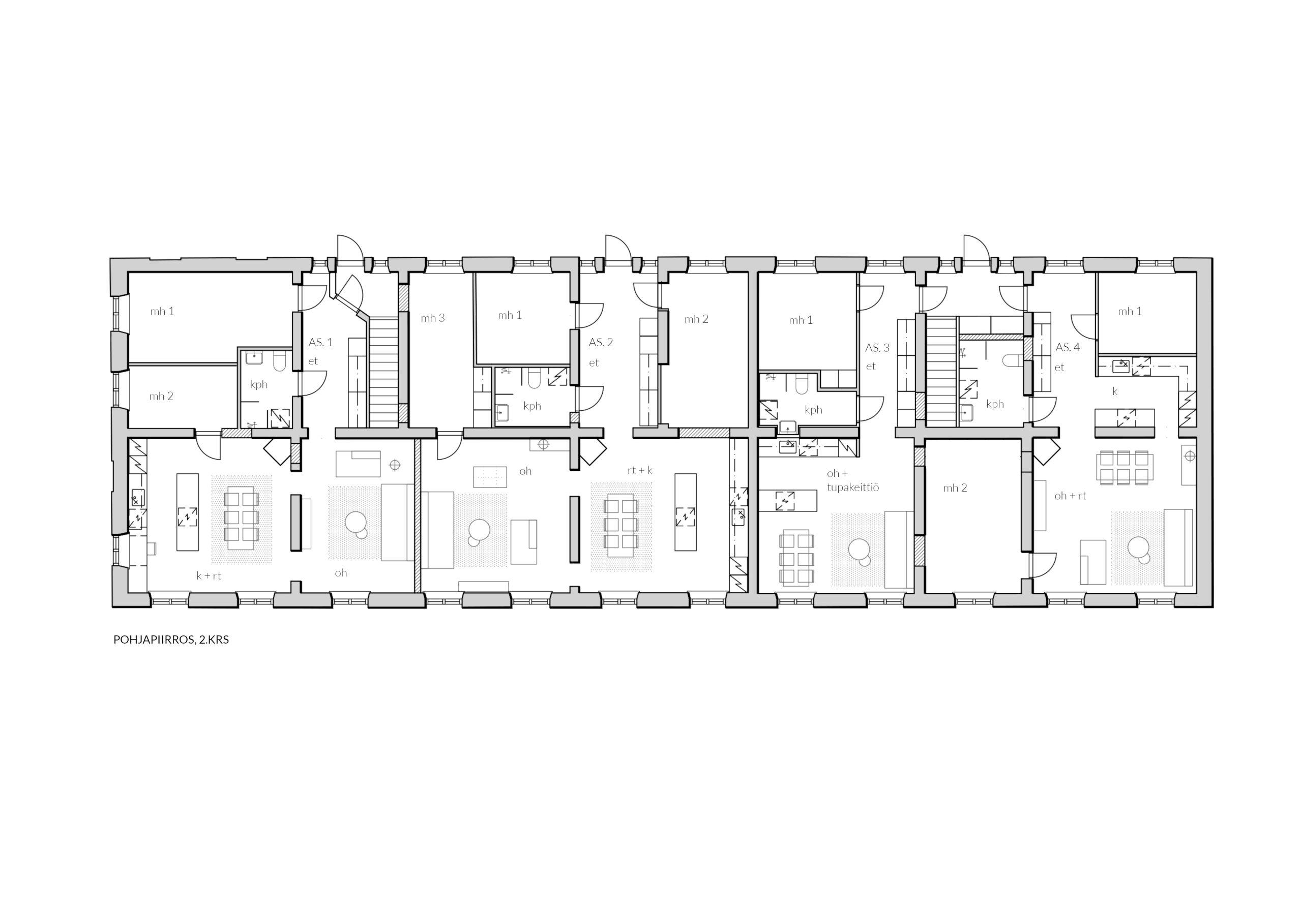
KASARMI 1852
Fiskarsin ruukkiin v.1852 valmistuneen kaksikerroksisen kasarmirakennuksen muutos- ja peruskorjaustyö. Yläkerran vuokra-asuntojen sunnittelussa kantavana ajatuksena oli sijoittaa huoneistojen oleskelutilat Fiskarsintielle päin ja makuuhuoneet pimeää takakujaa kohti. Huoneistosuunnitelmat sovitettiin huolellisesti vanhojen kantavien seinien ympärille hyödyntäen jo olemassaolevien aukkoja. Jokaiseen asuntoon tuli tilavat eteiset sekä runsaasti säilytystilaa. Seinät savirapattiin ja asunnoissa säilytettiin painovoimainen ilmanvaihto.
Olin myös alakerran liiketilojen muutostöissä projektiarkkitehtina työpiirustusvaiheesta eteenpäin. Alakerran liiketilat muutettiin esteettömiksi ja yhtenäiseksi kokonaisuudeksi. Tein toimeksiannon arkkitehtitoimisto Kasper Järnefeltille alikonsulttityönä.




